Le projet “Le bourg de Siviriez” est un projet résidentiel, idéalement situé au cœur du village. Cette promotion réunit le confort moderne, une architecture soignée et un cadre de vie paisible, à seulement quelques minutes de Romont et une trentaine de minutes de Fribourg.
Pensé pour répondre aux besoins des familles, des couples ou des personnes à la recherche d’un investissement durable, ce projet propose des appartements lumineux allant du studio au 5.5 pièces, offrant de beaux volumes et des finitions de qualité.
Chaque logement a été conçu intelligemment et les finitions peuvent être choisies selon vos envies en fonction des budgets définis.
Ce nouveau projet résidentiel réunit 25 appartements modernes, conçu pour allier confort et élégance. Chaque logement bénéficie d’un espace de vie lumineux et fonctionnel, agrémenté de finitions haut de gamme. Le bâtiment est équipé d’un ascenseur, facilitant l’accès à tous les étages, et offre des extérieurs soignés pour profiter de moments de détente en plein air.
Conçue selon les dernières normes en matière d’efficacité énergétique, l’immeuble assure une faible consommation d’énergie grâce à une isolation thermique et acoustique de haute qualité. Il bénéficie de la technologie géocooling pour rafraichir naturellement l’habitat en été.
Prix des logements à partir de
CHF 185’000.-
Date de livraison
Printemps 2027
Nombre de pièces
studio – 5.5 pièces
La situation
Nichée dans le district de la Glâne, au coeur du canton de Fribourg, la commune de Siviriez offre un cadre de vie calme et verdoyant à proximité de Bulle, Fribourg et Lausanne. Cette commune dynamique séduit par son équilibre entre nature, tradition et modernité.
La vie locale est rythmée par de nombreuses activités associatives, culturelles et sportives, avec un tissu communautaire actif. Les écoles, commerces de proximité et producteurs locaux renforcent l’attrait de ce village à taille humaine.
Siviriez est un lieu idéal pour s’installer, mêlant qualité de vie, tranquillité rurale et accès rapide aux centres urbains. Une opportunité rare dans un environnement préservé, tourné vers l’avenir.
Points d’intérêts |
Distances |
| Arrêt de bus | 400 m |
| Ecole primaire | 600 m |
| Boucherie | 200 m |
| Romont | 5 km |
| Bulle | 21.5 km |
| Lausanne | 32.4 km |
| Autoroute A12 (Lausanne-Berne) | 12.6 km |
La galerie
Les logements
Le Bourg de Siviriez
| Lot | Étage | PIèces | Prix (hors parking)* | Statut | ||||
|---|---|---|---|---|---|---|---|---|
| 1 | Rez inf. | 1 | CHF 250'000 | disponible | ||||
| 2 | Rez inf. | 1 | CHF 185'000 | disponible | ||||
| 3 | Rez inf. | 1 | CHF 275'000 | disponible | ||||
| 4 | Rez inf. | 1 | réservé | |||||
| 5 | Rez inf. | 1 | réservé | |||||
| 6 | Rez | 3.5 | réservé | |||||
| 7 | Rez | 4.5 | CHF 640'000 | disponible | ||||
| 8 | Rez | 4.5 | CHF 630'000 | disponible | ||||
| 9 | Rez | 2.5 | réservé | |||||
| 10 | Rez | 3.5 | réservé | |||||
| 11 | Rez | 5.5 | CHF 795'000 | disponible | ||||
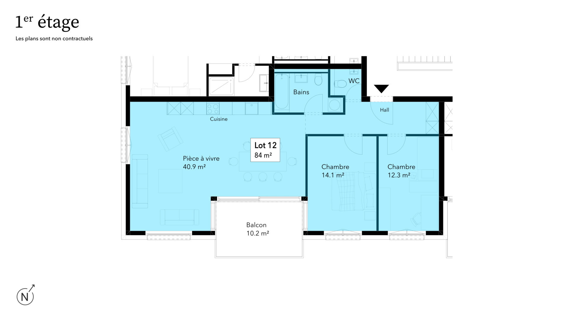
| 12 | 1er | 3.5 | CHF 505'000 | disponible | ||||
| 13 | 1er | 4.5 | CHF 640'000 | disponible | ||||
| 14 | 1er | 4.5 | CHF 630'000 | disponible | ||||
| 15 | 1er | 2.5 | CHF 450'000 | disponible | ||||
| 16 | 1er | 2.5 | réservé | |||||
| 17 | 1er | 3.5 | CHF 515'000 | disponible | ||||
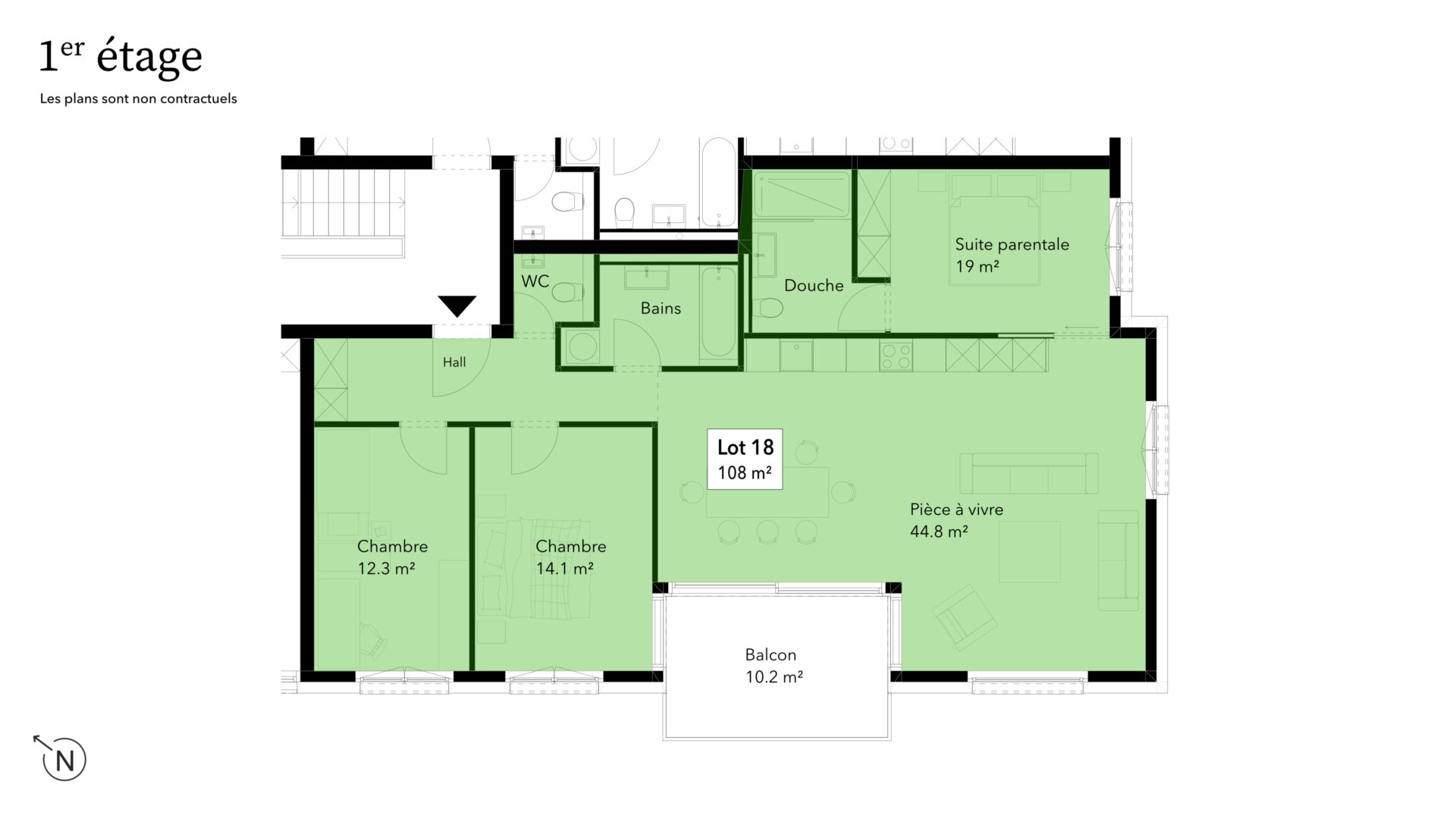
| 18 | 1er | 4.5 | CHF 665'000 | disponible | ||||
| 19 | 2ème | 3.5 | réservé | |||||
| 20 | 2ème | 4.5 | CHF 645'000 | disponible | ||||
| 21 | 2ème | 4.5 | CHF 635'000 | disponible | ||||
| 22 | 2ème | 2.5 | CHF 455'000 | disponible | ||||
| 23 | 2 | 2.5 | réservé | |||||
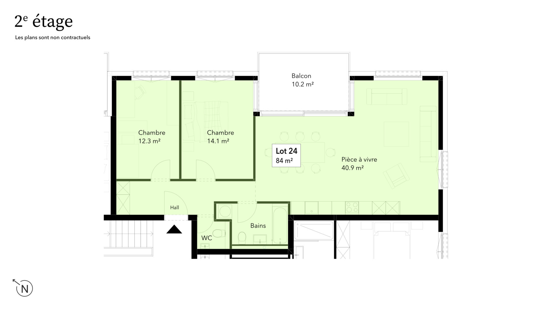
| 24 | 2ème | 3.5 | CHF 520'000 | disponible | ||||
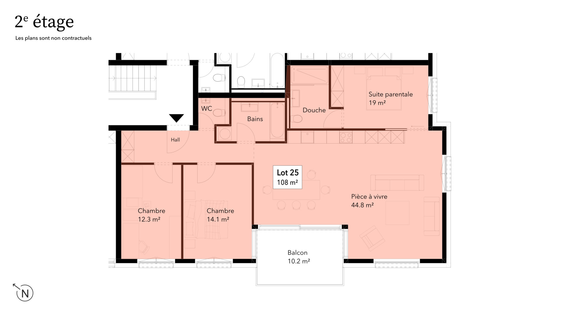
| 25 | 2ème | 4.5 | CHF 675'000 | disponible | ||||
* Places de parc intérieures en sus du prix de vente: CHF 30’000.-